Restauratie monumentale varkensschuur te Bladel
Restauratie monumentale varkensschuur te Bladel
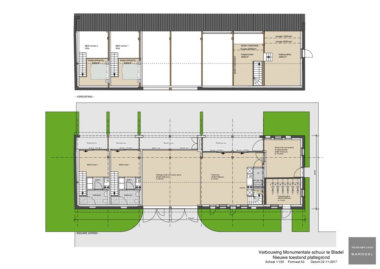
In het mooie buitengebied van Bladel staat naast een monumentale woonboerderij een even oude monumentale varkensschuur. Uit de archieven bleek dat de huidige varkensschuur uit begin 1900 een open graanschuur is geweest. Bij de inventarisatie van het pand is de geschiedenis blootgelegd. Hier is gebruik van gemaakt bij het maken van het nieuwe ontwerp waarin ook de nieuwe functie van het pand als B&B en tuinkamer is meegenomen.
Momenteel is fase 1 van de verbouwing gestart. In deze fase wordt eerst de buitenschil geheel gerestaureerd en wordt een langsgevel die van zeer slechte kwaliteit was terug gerestaureerd naar de open structuur van de oude graanschuur.
In fase 2 wordt wordt het nieuwe binnenpakket gerealiseerd.
Uitvoering door Raros bouw BV


